not expenses.
not expenses.
not expenses.
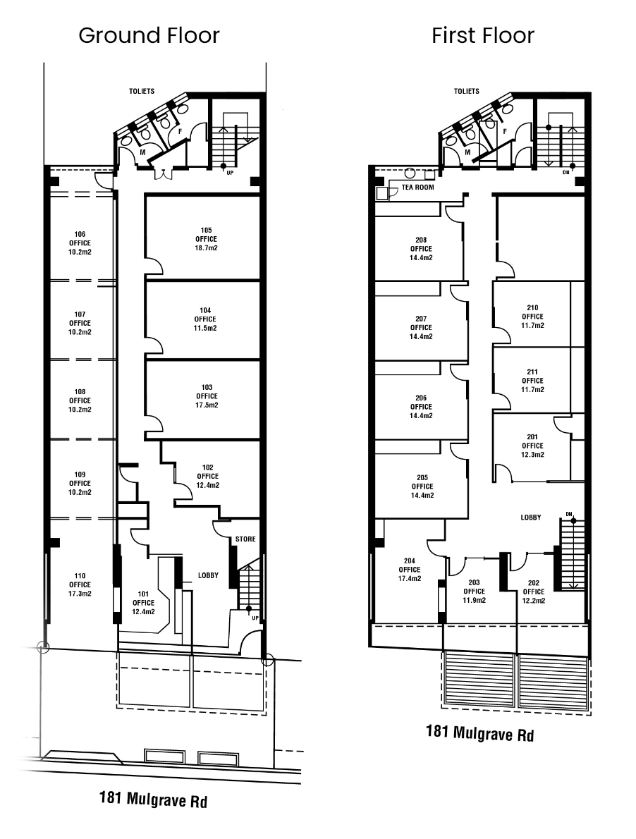
OfficeBASE Cairns serviced offices are ideal for start-ups and growing businesses, with flexible leases, adaptable office layouts, and clever design touches — the kind that say ‘success’ without shouting about it.
Serviced Office Spaces
Move-in and make it your own. Choose a private office and shape it to suit your business. And when it’s time for the big conversations, meeting and conference rooms are there when you need them.
24/7 Parking
Park like you own the place. Onsite and ready when you are. No circling the block. No silent prayers to the parking Gods. Convenient parking onsite and nearby.
Convenient Location
Right where you need to be. Close enough to the CBD to feel the hum, far enough to dodge the chaos. Quick access to all major roads, and the airport is just a hop away.
Private & Secure
24/7 monitored swipe-card access and restricted public entry mean you can focus on the work, not the distractions.
Designed for clear thinking
Because nobody ever had a breakthrough in a beige box.
Private, distraction-free offices designed for focus — spaces that feel calm, considered and quietly professional. The kind of environment where good ideas turn into real decisions.